在线咨询 切换到宽版
eetop公众号 创芯大讲堂 创芯人才网

 找回密码
 注册

手机号码,快捷登录

手机号码,快捷登录

搜全文
查看: 5212|回复: 11

[求助] 有没有大哥来帮小弟分析一下电路

[复制链接]
发表于 2022-5-9 21:31:20 | 显示全部楼层 |阅读模式
悬赏50资产已解决
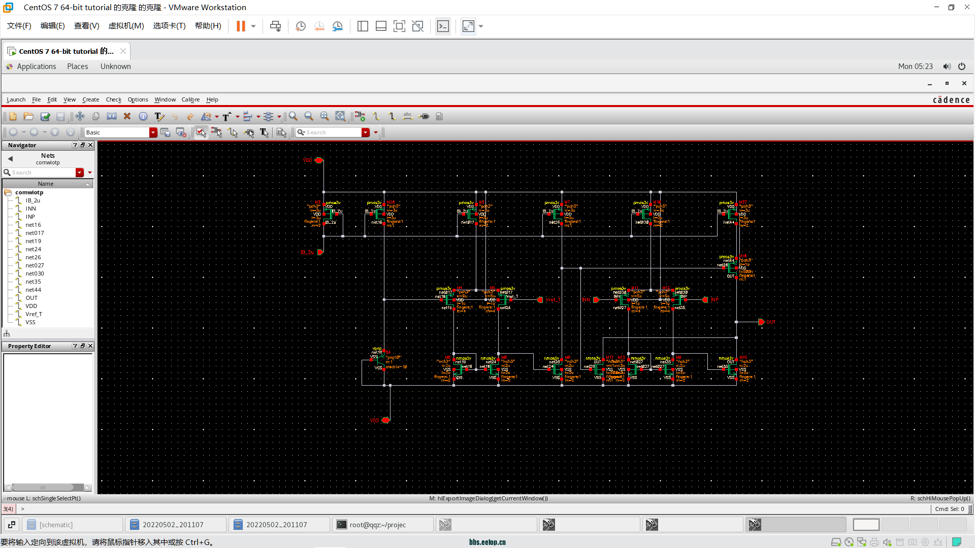
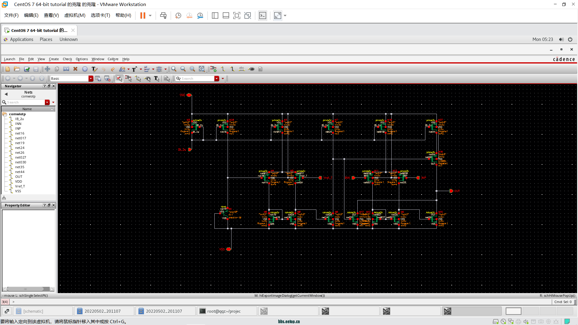
image.png
这是个带过热保护电路的比较器,但是我不太清楚大体构造和作用。又没有大佬帮忙分析一下

最佳答案

查看完整内容

楼主的图不清晰,也不知道右变的两个输入接到哪里。只能猜测: 1.左边的就是一个类似二级放大器的比较器,用Vref_T跟三极管的基极-发射极电压相比较(因为基极-发射极的电压跟温度相关)。 2.不知道右变电路的两个输入的连接方式,猜测右变好像也是一个二级比较器(因为没有发现补偿电容) 3.左边的比较器输出会通过管子M17(这个管子可能是M17,楼主的图实在是太不清晰)改变第二个比较器的输出,而且M17的存在,使比较器有迟滞功能。 ...
发表于 2022-5-9 21:31:21 | 显示全部楼层
本帖最后由 wrss20080407 于 2022-5-10 09:06 编辑

楼主的图不清晰,也不知道右变的两个输入接到哪里。只能猜测:
1.左边的就是一个类似二级放大器的比较器,用Vref_T跟三极管的基极-发射极电压相比较(因为基极-发射极的电压跟温度相关)。
2.不知道右变电路的两个输入的连接方式,猜测右变好像也是一个二级比较器(因为没有发现补偿电容)
3.左边的比较器输出会通过管子M17(这个管子可能是M17,楼主的图实在是太不清晰)改变第二个比较器的输出,而且M17的存在,使比较器有迟滞功能。

只能写这么多了,不对的地方大家多多指正。
另外,希望楼主换张图,清晰点的。看整张图眼睛太累。
回复

使用道具 举报

发表于 2022-5-10 08:51:14 | 显示全部楼层
截图不清晰,另外右边的INP,INN接什么的?
回复

使用道具 举报

发表于 2022-5-10 09:05:39 | 显示全部楼层
过热了,就把最右边上管关了,下管拉地;右边的比较器就不起作用了
回复

使用道具 举报

发表于 2022-5-10 09:06:40 | 显示全部楼层
M17把输出拉地
回复

使用道具 举报

发表于 2022-5-10 16:32:49 | 显示全部楼层
左侧的比较器检测温度当vbe大于vref,右侧放大器正常工作,当vbe小于vref时右侧放大器被关闭,并且输出0v。由于vbe是负温度特性,所以是过温检测
回复

使用道具 举报

 楼主| 发表于 2022-5-11 12:26:58 | 显示全部楼层
大哥们,这是清晰的图
微信图片_20220511122620.png
微信图片_20220511122624.png
回复

使用道具 举报

 楼主| 发表于 2022-5-11 12:27:51 | 显示全部楼层


   
wrss20080407 发表于 2022-5-10 09:05
楼主的图不清晰,也不知道右变的两个输入接到哪里。只能猜测:
1.左边的就是一个类似二级放大器的比较器, ...


这是清晰的图
微信图片_20220511122620.png
微信图片_20220511122624.png
回复

使用道具 举报

发表于 2022-5-11 16:29:49 | 显示全部楼层
参看前面几个回答应该够了
回复

使用道具 举报

发表于 2022-5-12 09:58:13 | 显示全部楼层
看了楼主的原理图及其仿真电路,猜测如下:
1. 管子M27,M16和M17组成一个类似反向器的电路
2. 左边比较器进行温度检测,输出当温度过高,bipolar的Vbe下降,当Vref_T高于bipolar的Vbe电压,左边比较器输出高电平,于是M17将电路输出OUT拉低,右变的比较器不起作用。
3. 常温下,Vref_T低于bipolar的Vbe,左边比较器输出低电平,管子M17不起作用,于是电路的输出OUT取决于右变的比较器。由于右变比较器的VINP端口接一个周期信号,所以此时的输出OUT也会是一个周期信号。

当然,以上都是猜测。有一个很大的疑问:根据楼主的仿真电路,左边比较器的参考电压是425mV。不知道楼主是如何确定这个参考电压的?bipolar的Vbe在0.5~0.8之间,因此根据楼主的仿真设置,不论温度如何变化,右变比较器的的输出会一直是0。
回复

使用道具 举报

您需要登录后才可以回帖 登录 | 注册

本版积分规则

关闭

站长推荐 上一条 /1 下一条

手机版| 小黑屋| 关于我们| 联系我们| 隐私声明| EETOP 创芯网
( 京ICP备:10050787号 京公网安备:11010502037710 )

GMT+8, 2025-10-2 02:49 , Processed in 0.020425 second(s), 5 queries , Gzip On, Redis On.

eetop公众号 创芯大讲堂 创芯人才网
快速回复 返回顶部 返回列表